棋牌平台,棋牌官网网站,棋牌游戏APP下载保利誉静安售楼处电话☎:✔✔保利誉静安营销中心电线小时热线】保利誉静安预约热线【售楼处电话】
▸保利誉静安售楼处地址:上海市静安区青云路614弄誉静安99(看房请提前预约)
【温馨提示】本项目唯一官方联系方式,看房请提前预约!现场销售接待!谨防中介虚假信息!

保利誉静安售楼处电话☎:✔✔保利誉静安营销中心电线小时热线】保利誉静安预约热线【售楼处电话】
确定性兜底:双国央企操盘 + 苏河湾 约4.2 平方公里规划背书,交付与保值双重保障;
稀缺性高能:填补内环 150 ㎡以下四房供应空白,准一梯一户 + 约8 ㎡独立电梯厅,同面积段或仅此一家;
质价比碾压:约143 ㎡住出约 160 ㎡+ 尺度感,超配装标,总价却比同板块竞品低约 20%;
节点性暴击:「誉静安」预计年底首推 96 套苏河湾旗舰超配大宅,建面约 143 ㎡ 4 房,高规格精装交付,样板间已开放 。
而对追求“一步到位”的高端家庭而言,这也是以豪宅配置匹配门槛级总价的罕见入场契机,资产避险的优选!

保利誉静安售楼处电话☎:✔✔保利誉静安营销中心电线小时热线】保利誉静安预约热线【售楼处电话】


装标方面,室内同步半亿豪宅标准,配备美诺3件套厨电(含油烟机、灶具、蒸烤一体机)、博世冰箱、大金中央空调+地暖+霍尼韦尔新风系统三大件,并搭载华为全屋智能控制系统。公共区域规划架空层泛会所,带来健身/瑜伽/棋牌室/社交会客厅/兴趣学堂/阅读&书吧6大独立功能空间的全维私属,满足全龄全时社交需求。

去年10月,上海苏河湾北部房地产开发有限公司通过协议出让方式获得静安区中兴社区C070202单元267街坊的145-20和270街坊的146-07两幅地块。据悉,保利置业重磅入局,通过产交所股权交易方式,摘牌获取北部房产51%股权,赢得与区属重要国资平台苏河湾集团合作机会,苏河湾集团与保利置业强强联手,目标将两幅地块打造为静安区标杆作品!
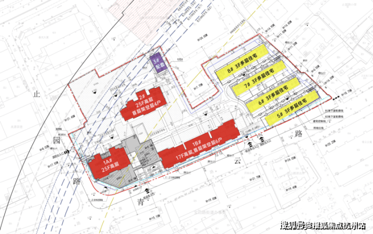
其中,145-20地块在止园路、青云路交汇处;146-07地块在中山北路和东宝兴路交汇处。

267街坊145-20地块的规划设计方案已于今年1月公示。项目拟打造3栋17-25层高层住宅、4栋3层低密住宅,并配备部分社区配套设施。地块距离8号线米,结合内环范围内墅质项目的稀缺性,市场期待值颇高。


据静安区官网中兴社区C070202单元270街坊146-07地块新建住宅项目规划设计方案展示。地块拟建3栋15-25层高层建筑以及1栋商办,社区配套等;住宅楼栋首层全架空设计,社区内全部人车分流;有中央景观绿化,儿童活动区等。

保利誉静安售楼处电话☎:✔✔保利誉静安营销中心电线小时热线】保利誉静安预约热线【售楼处电话】
同时,两宗宅地内的120㎡以下户型均不低于55%,比例指标可在两地块间相互统筹,100%全装修,装修标准不低于4000元/㎡。
此外,两宗地块均不建保障房,地块内5%保障房统筹平移至中兴社区C070202单元304-10地块(258街坊)内集中建设。
誉静安的项目设计诚邀天华副总设计师李黎女士(金茂府、瑞虹新村等都是其手笔),建筑设计诚邀gad上海设计总监江芳先生操刀(九龙仓静安花园、上海外滩黄浦8号都有参与),室内设计诚邀WJID维几设计总设计师黄全操刀,景观设计由笛东景观总部副总裁、上海公司总经理王嵩嵩先生操刀。


保利誉静安售楼处电话☎:✔✔保利誉静安营销中心电线小时热线】保利誉静安预约热线【售楼处电话】
项目建筑立面以镜面幕墙与天然石材共谱交响,设计灵感源自外白渡桥的经典韵律,重塑城市天际线的艺术地标。

项目打造现代海派风格的外立面,线条简洁大气; 社区规划六重生活体验空间,从酒店式落客入口、镜面水庭到美学花园,旨在将高端酒店的奢享基因融入日常生活。


·单元革新: 地铁、商业、办公、居住、教育的城市单元闭环/消弭最后100米
·人文复合:以摩登商业街角融合静安街区,创作上海心中最迷人的corner
归家礼序: 酒店式落客门厅 +艺廊归仪 +三大厅堂(落客大堂/迎宾大堂/归家大堂
全时社交:共处誉 CLUB·顶奢社交会所 X私密HOME CLUB·高定私属奢服

保利誉静安售楼处电话☎:✔✔保利誉静安营销中心电线小时热线】保利誉静安预约热线【售楼处电话】
接待观:专属管家式一对一接待服务,以3大场景9大礼誉带来前所未享的尊荣体验
圈层观:为少儿、青年、长者等不同人群定制专属圈层平台,实现超越预期的人本关怀
开放观:让泛会所全时全龄,成为在地文化新据点,双角色管家为全龄段业主提供定制化服务支持
社交观:综合康体概念Asaya,从配套到核心价值驱动,构建全龄段人本关怀社交场景
服务观:圆融性客户关系管理“分秒级-心跳级”响应,24小时安全定制(从儿童看护到深夜伴行)守护归家每一程

誉静安的建筑标准是直接对标新规的,方方面面对现有住宅项目都构成了堪称降维打击的优势。
比如,项目会所、架空层面积合计约3500㎡,规模足以媲美单价18万/㎡朝上的顶豪项目,而且300户小区,人均享受的社区配套面积更是全市少有!
保利誉静安售楼处电话☎:✔✔保利誉静安营销中心电线小时热线】保利誉静安预约热线【售楼处电线、

项目2个地块合计570多套房源,主力面积段包括建面约100-143㎡3-4房,誉静安首开96套建面约143㎡4房,具体户型如下:
中间套的BC户型是市面上最受欢迎的飞机户型,格局上做到三开间朝南+南北通透,采光通风效果俱佳。
主卧套房设计,私密性和舒适度双爆表。次卧外接阳台,灵动性十足,存在后期改造扩容卧室休息空间的可能性!
更难得的是,整个户型几乎没有过道,面积极致利用,加上本就高的得房率,空间感秒杀同面积段其他竞品!

保利誉静安售楼处电话☎:✔✔保利誉静安营销中心电线小时热线】保利誉静安预约热线【售楼处电话】
保利誉静安售楼处电话☎:✔✔保利誉静安营销中心电线小时热线】保利誉静安预约热线【售楼处电话】
保利誉静安售楼处电话☎:✔✔保利誉静安营销中心电线小时热线】保利誉静安预约热线【售楼处电话】
三个卧室全部朝南,阳光满溢。从次卫布局看,如果家庭人口较少,该户型还能做成双套卧。
除了户型设计优秀,项目的装修配置也堪称豪华,具体细节可以来样板间亲身体验~

在上海,蕴含东方大都会百年底蕴和站在城市发展浪尖的地段一直都在外滩3公里范围内。

反过来看,外滩、陆家嘴、人广、北外滩、南京路等CBD,同样在项目3公里生活半径内。住在这样的地方,无疑轻松享受国际化潮流生。交通方面,项目邻近8号线中兴路站,妥妥的步行进站地铁房,2站可直达人民广场。


保利誉静安售楼处电话☎:✔✔保利誉静安营销中心电线小时热线】保利誉静安预约热线【售楼处电话】
如果自驾的话,项目快速联通南北高架,无缝衔接内中外环及延安路高架。同时近邻北横通道,速达中山公园、北外滩、东外滩等浦西重要城市节点。还有4大隧道(新建路隧道、人民路隧道、大连路隧道、延安东路隧道)可直达陆家嘴!
1公里范围内有静安大悦城、万象天地、凯德虹口商业中心、百万中兴城商业(在建中)、珠江安康苑的商业合生汇(在建中)等大型商场。
同时项目距离人民广场商圈约2km、南京西路商圈约2km、陆家嘴商圈约3km、静安寺商圈约4km,自驾或地铁迅捷可达!
医疗资源方面,项目周边约3km范围内上海市中医医院(三甲) 、上海长征医院(三甲) 、上海市第一人民医院(三甲)、闸北区中心医院、上海第十人民医院 (三甲) 、同济大学附属口腔医院(三甲) 环伺。

保利誉静安售楼处电话☎:✔✔保利誉静安营销中心电线小时热线】保利誉静安预约热线【售楼处电话】
教育资源方面,项目周边学府荟萃,全龄教育护航,包括育婴堂幼儿园、吉的堡永盛双语幼儿园、静安区永兴路第二小学、静安区闸北第三中心小学、民办杨波外国语小学、市北初级中学、市北中学高中等。(学校对口情况须在本小区交付后以政府教育主管部门及校方的最新政策为准)
再来看项目的未来前景,日前大苏河湾规划官宣,项目被纳入大苏河湾规划红线内,规划能级直线上升。

中兴城对标的是纽约曼哈顿Hudson Yards等全球卓越城市的城市心脏,将打造包含国际生活社区、国际消费社区、高端艺术场所在内的多样生活与文化空间。据悉还将引入新的教育资源。
▸保利誉静安售楼处地址:上海市静安区青云路614弄誉静安99(看房请提前预约)
【温馨提示】本项目唯一官方联系方式,看房请提前预约!现场销售接待!谨防中介虚假信息!
2026年上海房产新政涉及限购、信贷、税费及补贴等多方面调整,旨在降低购房门槛、支持合理住房需求并促进市场平稳健康发展。
非沪籍购房社保年限大幅缩短:非沪籍居民购房所需社保或个税年限从连续缴纳满5年及以上调整为连续缴纳满3年及以上。新城南北转型等重点区域的非沪籍人才购房年限进一步缩短至连续缴纳满2年及以上,而
非沪籍单身人士购房区域从外环外扩大至外环内二手住房。重点区域的非沪籍人才购房区域扩大至所在区全域。离异与赠与住房套数计算规则调整:取消离异购房合并计算住房套数规定,夫妻离异后购房不再按离异前家庭计算住房套数。调整住房赠与规定,已赠与住房不再计入赠与人拥有住房套数。支持多子女家庭与“以旧换新”:二孩及以上多子女家庭(含非沪籍)可在限购政策基础上增购1套住房。企业购买小户型二手住房(2000年前竣工、建筑面积70平方米及以下)用于职工租住的,不再限定购买套数。信贷政策调整商业性个人住房贷款:首套住房贷款利率下限调整为不低于相应期限LPR减45个基点(调整后,5年期以上利率下限目前为3.5%),最低首付款比例调整为20%二套住房贷款利率下限
调整为不低于相应期限LPR减5个基点(目前为3.9%),最低首付款比例调整为35%。在自贸区临港新片区及嘉定,青浦,松江,奉贤,宝山,金山
6个行政区,二套住房贷款利率下限调整为LPR减25个基点(目前为3.7%),最低首付款比例调整为30%。住房公积金贷款:购买首套住房,家庭公积(含补充公积金)
最高贷款额度调整为160万元;购买第二套改善型住房,家庭最高贷款额度调整为130万元。多子女家庭购买首套住房,最高贷款额度可在此基础上上浮20%,即最高可达192万元,首套及二套公积金贷款最低首付款比例分别调整为20%和35%,在上述6个行政区及临港新片区购买二套住房的首付款比例调整为30%。税费优惠与补贴支持个人所得税退税优惠:自2026年1月1日至2027年12月31日,对出售自有住房并在现住房出售后1年内在市场重新购买住房的纳税人,对其出售现住房已缴纳的个人所得税予以退税优惠。
“以旧换新”购房补贴:在一年内出售外环内2000年前竣工、建筑面积70平方米及以下的唯一住房,并购买外环外一手住房的居民家庭,可按出售住房建筑面积申请分档定额补贴:30平方米以下补贴2万元,30-50平方米补贴2.5万元,50-70平方米补贴3万元。
房产税政策:非沪籍家庭持有本市长期居住证满3年可免交房产税;购买第二套及以上住房,在合并计算家庭全部住房面积后,给予人均60平方米的免税面积扣除。
保利誉静安售楼处电话☎:✔✔保利誉静安营销中心电线小时热线】保利誉静安预约热线【售楼处电话】
楼盘项目全面介绍,本电话为开发商提供线上预约售楼电话,楼盘项目全面介绍(包含楼盘简介,均价,房价,现房,期房,别墅,叠墅,大平层,价格,楼盘地址,户型图,交通规划,备案价,备案名,项目配套,样板间,开盘时间,认筹时间,楼盘详情,售楼处电话,最新消息,最新详情,周边配套,一房一价,最新进展等详情咨询)楼盘详情丨价格丨更多优惠丨机不可失丨欢迎致电丨诚邀品鉴!售楼处位置丨特价房丨工抵房丨剩余房源丨户型图丨最新消息丨免责声明:将文章内容综合来源于网络、只作分享,版权归原作者所有!!如有侵权,请联系我们,我们第一时间处理如有问题欢迎来电咨询,专业一对一热情服务,让您用专业眼光去买房。如果您想了解更多楼盘详情,欢迎提前预约拨打
平台声明:该文观点仅代表作者本人,搜狐号系信息发布平台,搜狐仅提供信息存储空间服务。

联系我们
电话:400-123-4567
手机:138 0000 0000

公司地址
地址:广东省广州市天河区88号

公司名称
棋牌平台